www.marko-barth.de | Marko Barth im World Wide Web.

>> Startseite / Übersicht Entwerferische u. planerische Arbeiten

_ __ Studium Raum- und Umweltplanung (Dipl.- Ing.)

 

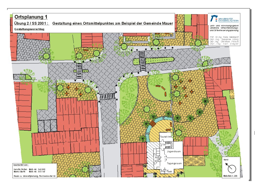
Umgestaltung eines Ortsmittelpunkts am Beispiel der Gemeinde Mauer (Baden - Württemberg)


Studentische Arbeit im Sommersemester 2001 an der Technischen Universität Kaiserslautern
Bearbeiter:
Kerstin Felten, Marko Barth


Bestandsaufnahme, Analysen, Konzeptfindung (Städtebau, Freiraum, Verkehr, Architektur der Gebäude)


Planungen und Details

>> zurück zur ersten Seite  



>> last update| 29_11_2007| Impressum | copyleft beim Seitenanbieter